Vente Terrain – à Cloyes-les-trois-rivières (28220)

  1. Accueil
  2. Propriétés
  3. Vente Terrain – à Cloyes-les-trois-rivières (28220)

Référence : Js/851

63 400 €

Honoraires de négociation à la charge du vendeur

Votre interlocuteur

Julie Septier

Téléphone : 06.30.09.55.47
Contactez-nous par mail à :
negociation.cloyes.28035@notaires.fr

TVA : FR15404857922 | SIRET : 40485792200011

Description

Terrain à bâtir à vendre à Cloyes-les-Trois-Rivières (28220) en Eure-et-Loir (28) à 30 minutes de la gare TGV de Vendôme,
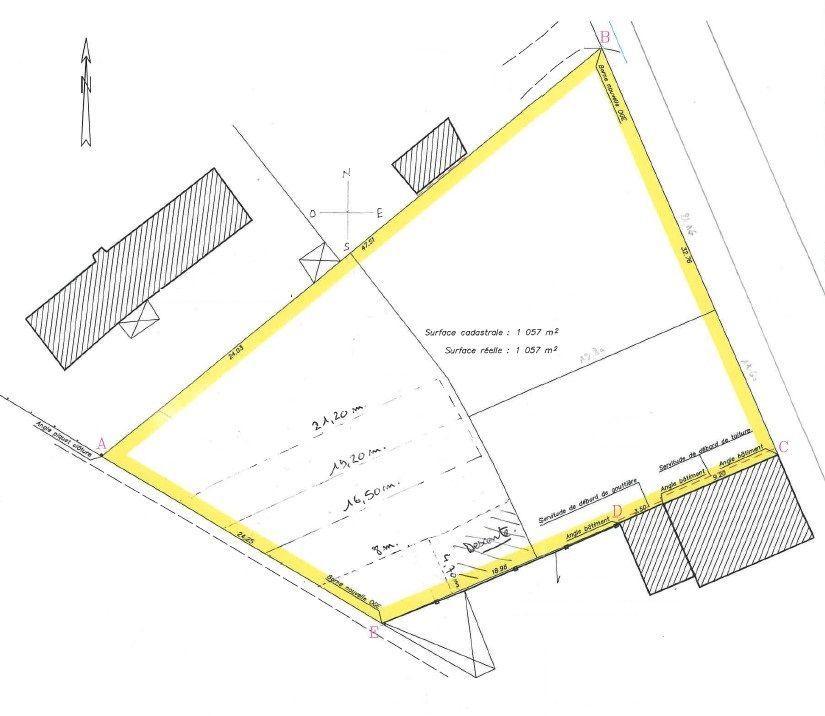
Ce terrain à bâtir offre une surface totale de 1057 m², situé dans la localité de Cloyes-les-Trois-Rivières. La parcelle est destinée à la construction et se prête à divers projets. Le prix de vente est fixé à 63 400 euros.
Cloyes-les-Trois-Rivières est une commune qui se trouve dans le département de l’Eure-et-Loir, à proximité de plusieurs infrastructures et services. La ville dispose d’un groupe scolaire, d’un collège, de services de santé, de commerces de proximité, et d’un accès à des réseaux de transport facilitant les déplacements. La commune est également traversée par plusieurs cours d’eau, ce qui contribue à son attrait naturel.
La localité est creusée par l’histoire et offre divers points d’intérêt tels que des monuments historiques, des espaces verts et des événements culturels tout au long de l’année. Les amateurs d’activités de plein air apprécieront les sentiers et les espaces propices aux promenades.

Caractéristiques

Référence
Js/851
Ville
Cloyes-les-trois-rivières
Code Postal
28220
Surface
1057 m²
Surface Terrain
1057 m²

DPE – GES

Diagnostic de performance énergétique
DPE vierge Consommations non exploitables
Non soumis au diagnostic
* Dont émissions de gaz à effet de serre
GES vierge Consommations non exploitables

Autres biens pouvant vous intéresser

Vente Terrain

7 000 €

2861 m²
Vente Maison

207 000 €

162.84 m²6 pièces
Vente Terrain

60 000 €

1503 m²

Pin It on Pinterest