Vente Maison – 8 pièces – 130 m² à Langey (28220)

  1. Accueil
  2. Propriétés
  3. Vente Maison – 8 pièces – 130 m² à Langey (28220)

Référence : Js/921

149 000 €

Honoraires de négociation à la charge du vendeur

Votre interlocuteur

Julie Septier

Téléphone : 06.30.09.55.47
Contactez-nous par mail à :
negociation.cloyes.28035@notaires.fr

TVA : FR15404857922 | SIRET : 40485792200011

Description

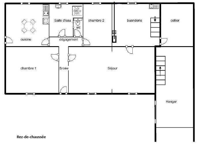
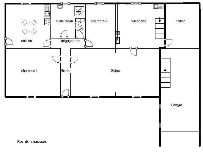
Maison 6 pièces à vendre à LANGEY, commune de VALD’YERRE (28220) à 30 minutes de la gare TGV de Vendôme,
Maison de 130 m² implantée sur un terrain de 1 825 m², comprenant au rez-de-chaussée : une entrée sur couloir, une pièce de vie, deux chambres, une cuisine, une salle de douche, un local chaufferie/débarras, ainsi que des WC.
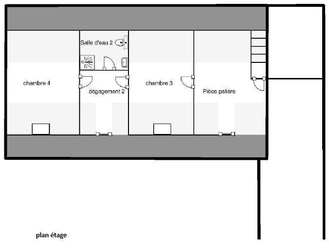
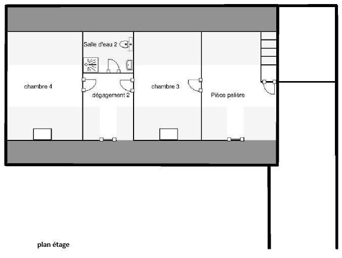
À l’étage, trois chambres en enfilade, une salle d’eau avec WC.
La maison dispose de dépendances, d’un double garage, de menuiseries en simple vitrage et survitrage bois. La toiture est en bon état, assainissement individuel.
Les informations sur les risques auxquels ce bien est exposé sont disponibles sur le site Géorisques : www.georisques.gouv.fr. Contactez notre office notarial pour obtenir de plus amples renseignements sur cette maison.

Caractéristiques

Référence
Js/921
Ville
Langey
Code Postal
28220
Surface
130.39 m²
Surface Terrain
1825 m²
Nombre de pièces
8
Nombre de chambres
5
Nombre de salle(s) de bain
0

DPE – GES

Diagnostic de performance énergétique
DPE vierge Consommations non exploitables
Non soumis au diagnostic
* Dont émissions de gaz à effet de serre
GES vierge Consommations non exploitables

Date des diagnostics : 31/07/2025

Autres biens pouvant vous intéresser

Vente Maison

84 400 €

80 m²3 pièces

Pin It on Pinterest