Vente Maison – 7 pièces – 165 m² à Vald’yerre (28290)

  1. Accueil
  2. Propriétés
  3. Vente Maison – 7 pièces – 165 m² à Vald’yerre (28290)

Référence : Js/885

179 000 €

Dont prix de vente : 169 000 €
Dont HN* TTC à la charge de l’acquéreur : 10 000 € (5,92%)

Votre interlocuteur

Julie Septier

Téléphone : 06.30.09.55.47
Contactez-nous par mail à :
negociation.cloyes.28035@notaires.fr

TVA : FR15404857922 | SIRET : 40485792200011

Description

Maison Familiale de Charme à Vald’Yerre (Arrou)
Espace, Calme et Potentiel à 1h30 de Paris

Découvrez cette spacieuse propriété de 165,5 m² habitables, nichée au coeur d’un parc arboré de plus de 5 000 m². Idéale pour une famille ou un projet alliant vie personnelle et professionnelle.

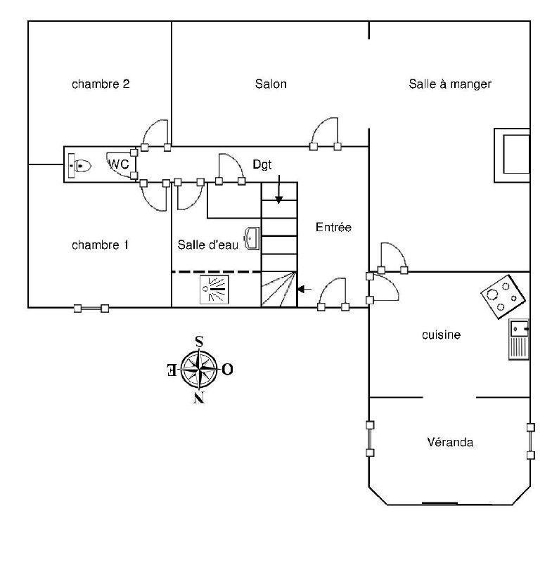
Volume & Confort : 7 pièces dont 5 chambres lumineuses, offrant un agencement fonctionnel et modulable.

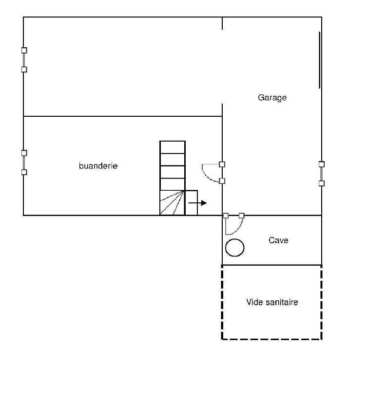
Sous-sol Total : Un espace de stockage ou d’atelier sur toute la surface de la maison.

Extérieurs d’Exception : Un terrain de 5 048 m² agrémenté d’une mare (véritable havre de paix) et d’un hangar idéal pour les collectionneurs, artisans ou besoins de stockage.
Accès Paris : Gare TER sur place (Liaison directe Paris-Montparnasse en 1h30 env.).

À seulement 30 minutes de la Gare TGV de Vendôme, connectant les grands axes rapidement.

Commodités : Située à Vald’Yerre, commune dynamique avec commerces, écoles et infrastructures de loisirs à proximité immédiate.

L’avis de l’expert : Un bien rare sur le secteur combinant le charme de l’Eure-et-Loir, une accessibilité ferroviaire optimale et des dépendances à fort potentiel.

Caractéristiques

Référence
Js/885
Ville
Vald'yerre
Code Postal
28290
Surface
165 m²
Surface Terrain
5048 m²
Nombre de pièces
7
Nombre de chambres
5
Nombre de salle(s) de bain
0

DPE – GES

Diagnostic de performance énergétique
DPE vierge Consommations non exploitables
Non soumis au diagnostic
* Dont émissions de gaz à effet de serre
GES vierge Consommations non exploitables

Date des diagnostics : 12/08/2025

Autres biens pouvant vous intéresser

Vente Terrain

12 500 €

909 m²
Vente Maison

202 000 €

133 m²6 pièces
Vente Maison

98 000 €

107.35 m²5 pièces

Pin It on Pinterest