Vente Maison – 3 pièces – 65 m² à Châteaudun (28200)

  1. Accueil
  2. Propriétés
  3. Vente Maison – 3 pièces – 65 m² à Châteaudun (28200)

Référence : Rcs/829

129 500 €

Honoraires de négociation à la charge du vendeur

Votre interlocuteur

Rodolphe Chedet

Téléphone : 06.80.00.54.09
Contactez-nous par mail à :
negociation.chateaudun.28035@notaires.fr

TVA : FR15404857922 | SIRET : 40485792200011

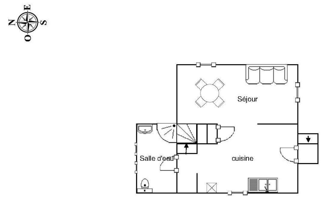
Description

EXCLUSIVITE ! A vendre à CHATEAUDUN (28200) en Eure-et-Loir maison T2/3 + terrain à bâtir attenant d’environ 1100 m².
Opportunité d’investissement à CHATEAUDUN (28200), Eure-et-Loir : charmante maison T2/3 de 65 m² sur un terrain de 492 m² ainsi qu’un terrain constructible d’environ 1100 m². Idéale pour les investisseurs immobiliers et constructeurs. Cette propriété propose un rez-de-chaussée avec une cuisine équipée, un séjour climatisé, et une salle d’eau. À l’étage, une mezzanine, une chambre avec dressing et un bureau. Un sous-sol complète le bien. Le jardin plat et clos offre un espace extérieur agréable. Atout majeur, un terrain constructible de 1 152 m² avec garages est situé à l’arrière, offrant de nombreuses possibilités de développement, avec une étude de sol G1 en cours.

Caractéristiques

Référence
Rcs/829
Ville
Châteaudun
Code Postal
28200
Surface
65 m²
Surface Terrain
1644 m²
Nombre de pièces
3
Nombre de chambres
1
Nombre de salle(s) de bain
0

DPE – GES

Diagnostic de performance énergétique
DPE vierge Consommations non exploitables
Non soumis au diagnostic
* Dont émissions de gaz à effet de serre
GES vierge Consommations non exploitables

Date des diagnostics : 04/06/2025

Autres biens pouvant vous intéresser

Vente Maison

280 000 €

90 m²4 pièces
Vente Maison

450 000 €

420 m²10 pièces

Pin It on Pinterest