Vente Autre – à La Chapelle-du-noyer (28200)

  1. Accueil
  2. Propriétés
  3. Vente Autre – à La Chapelle-du-noyer (28200)

Référence : Rc/926

191 500 €

Honoraires de négociation à la charge du vendeur

Votre interlocuteur

Rodolphe Chedet

Téléphone : 02.37.94.07.00
Contactez-nous par mail à :
negociation.chateaudun.28035@notaires.fr

TVA : FR15404857922 | SIRET : 40485792200011

Description

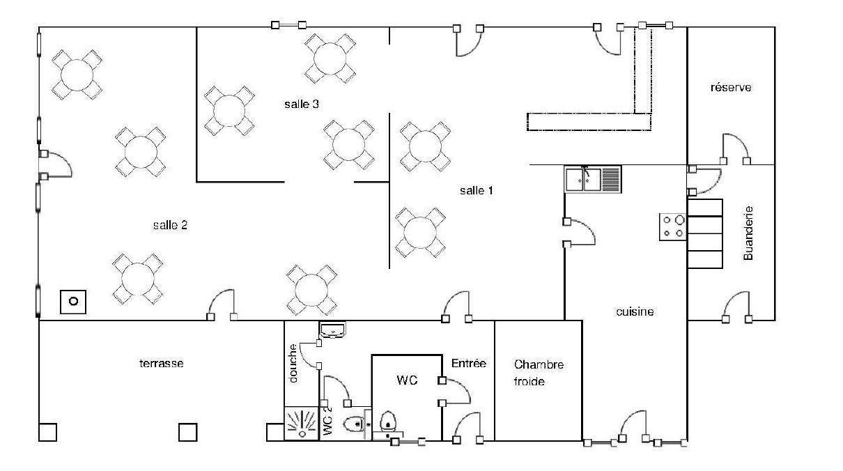
À vendre : murs commerciaux avec partie habitation, idéalement situés à LA CHAPELLE DU NOYER (28200) sur la nationale 10 reliant Vendôme (41) à Chateaudun (28).
Le rez-de-chaussée accueille un bar/restaurant comprenant plusieurs salles à manger, une cuisine professionnelle avec chambre froide, ainsi que des sanitaires avec douche et wc. Un espace de stockage et une buanderie complètent cet étage.
À l’étage, la partie habitation propose un grand palier/pièce de vie, quatre chambres, une salle de bain, un wc et un grenier ouvert. Les extérieurs offrent une terrasse privative sans vis-à-vis, deux dépendances, une terrasse clientèle semi-couverte sur un terrain clos, plat et arboré.

Caractéristiques

Référence
Rc/926
Ville
La Chapelle-du-noyer
Code Postal
28200
Surface
887 m²

DPE – GES

Diagnostic de performance énergétique
DPE vierge Consommations non exploitables
Non soumis au diagnostic
* Dont émissions de gaz à effet de serre
GES vierge Consommations non exploitables

Autres biens pouvant vous intéresser

Vente Maison

89 900 €

76.5 m²4 pièces
Vente Maison

106 400 €

161.23 m²7 pièces
Vente Maison

241 900 €

140.41 m²6 pièces

Pin It on Pinterest